Welcome To
177 Chester St East
Boiler Precinct
Uber-Chic Urban Living
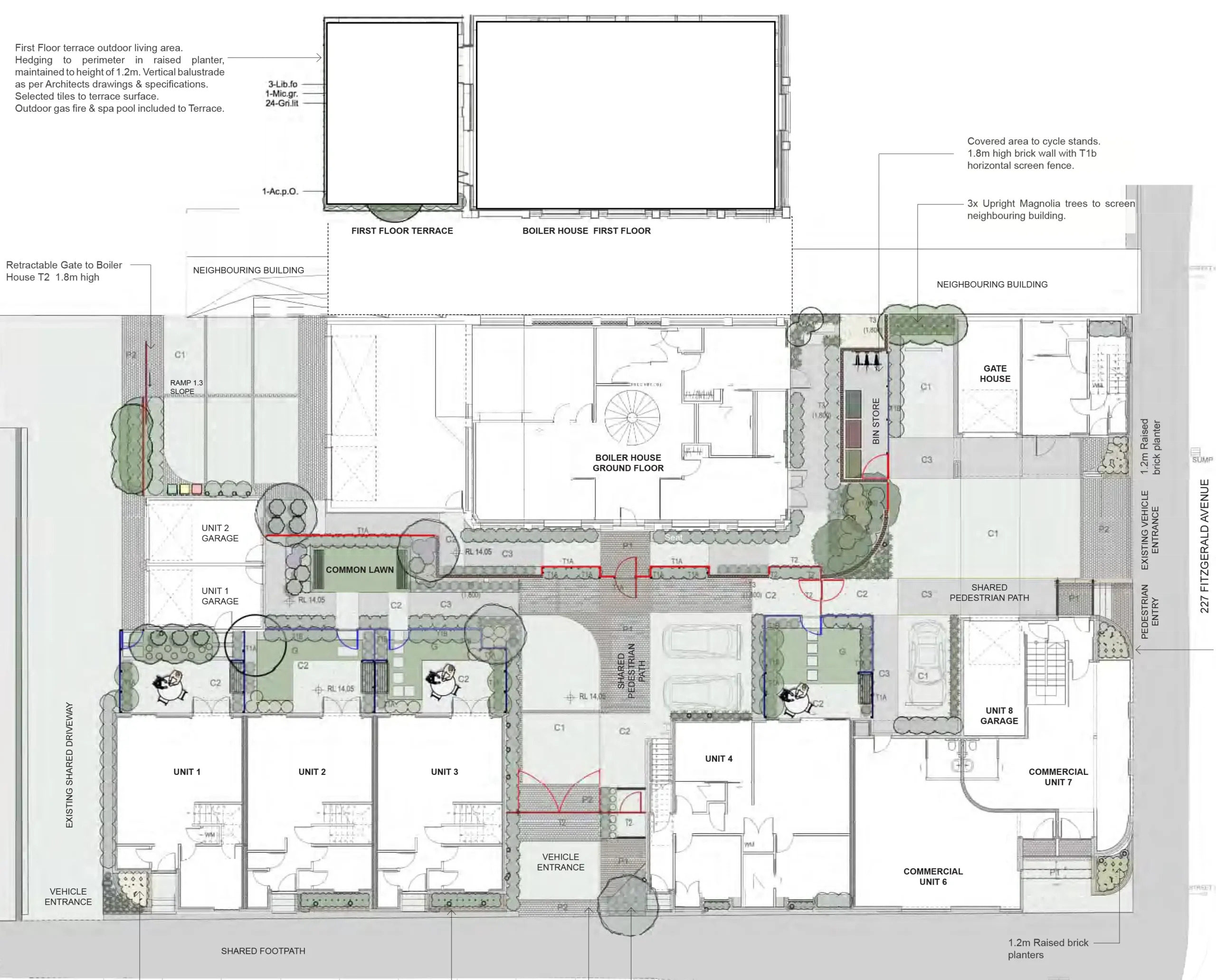
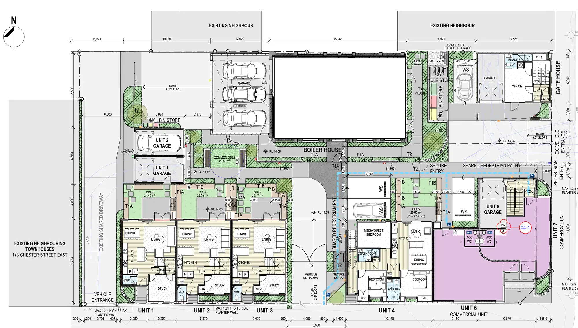
Beautiful contemporary design meets incredible convenience and a lifestyle like no other in this innovative boutique development. Consisting of eight captivating townhouses and commercial spaces, the Boiler Precinct draws on the heritage of this landmark site on the edge of the CBD, with a robust brick veneer wrapping around beautiful, curved forms. It sits perfectly alongside the adjacent Flow yoga studio and wellbeing centre and is just a moment’s walk from Pomeroy’s, iconic brewpub and café. It’s a short stroll to river walks and walking distance to the magnificent new Te Kaha Stadium, scheduled to open in 2026.
Offering a mix of two-bedroom + two-bathroom residences and three-bedroom, two-bathroom + study homes, there are options to suit a range of needs. Each property comes with one allocated carpark or garage – a welcome feature given you might decide to leave the car at home and walk or bike to work when the city is on your doorstep. The interiors are elegant and light, with carefully curated finishes including Timber finished floors. Kitchens are sleek and well-planned, equally suited to everyday living and entertaining with engineered stone counters and high-spec appliances. Bathrooms include tiled showers, while ducted heat-pump systems ensure comfortable climate control.
This is your chance to secure a central city property that will stand the test of time with exceptional design and quality, underpinned by a location that will just keep getting better as key developments in the CBD come to completion. Don’t miss the opportunity to stake your claim. Contact the agents without delay to view.
At a Glance
It’s the little things that make a house a home, the details have been taken care of:
- Peaceful colour palette
- Samsung & Fisher and Paykel appliances
- Rinnai heat pumps
- Double glazed windows with powder coated aluminum
- High performing thermal insulation
- Intelligent storage space
- Generous bathroom solutions
- Light and bright living spaces
- Low maintenance landscaping
Units at 177 Chester St East
Location
Experience the best of chic urban living in the heart of Christchurch Central, where city convenience meets a vibrant lifestyle. Surrounded by an exciting mix of eateries, culture, and entertainment, this sought-after location offers everything you need within easy reach. From stylish cafés and boutique shopping to green spaces and world-class venues, it’s a neighbourhood that blends energy, creativity, and everyday ease—perfect for those who want to live at the centre of it all.
- Little Poms
- Te Kaha Stadium 2026
- New Regent Street
- Isaac Theatre Royal
- Flow Yoga Christchurch
- Turanga
- Short Commute to CBD
- The Church
About The Developer
At VVV Group, we don’t just build homes- we shape lifestyles. We’ve grown into a force within Canterbury’s development landscape, delivering quality-driven, design-led communities that stand the test of time.
With a signature blend of craftsmanship, innovation, and a deep understanding of what Kiwis truly value in a home, we bring spaces to life-where indoor-outdoor flow is seamless, functionality meets beauty, and families thrive. Each project we take on is a reflection of our relentless pursuit of excellence. From concept to completion, we’re committed to creating warm, healthy homes that exceed expectations- whether for first-home buyers, families, or seasoned investors.
Our strength lies in our people. Backed by a trusted network of dedicated trades and industry professionals, VVV Group sets the standard for modern developments across the region. We believe in bold ideas, practical delivery, and no shortcuts -ever.
This is more than building. This is vision. This is VVV.